规划公布
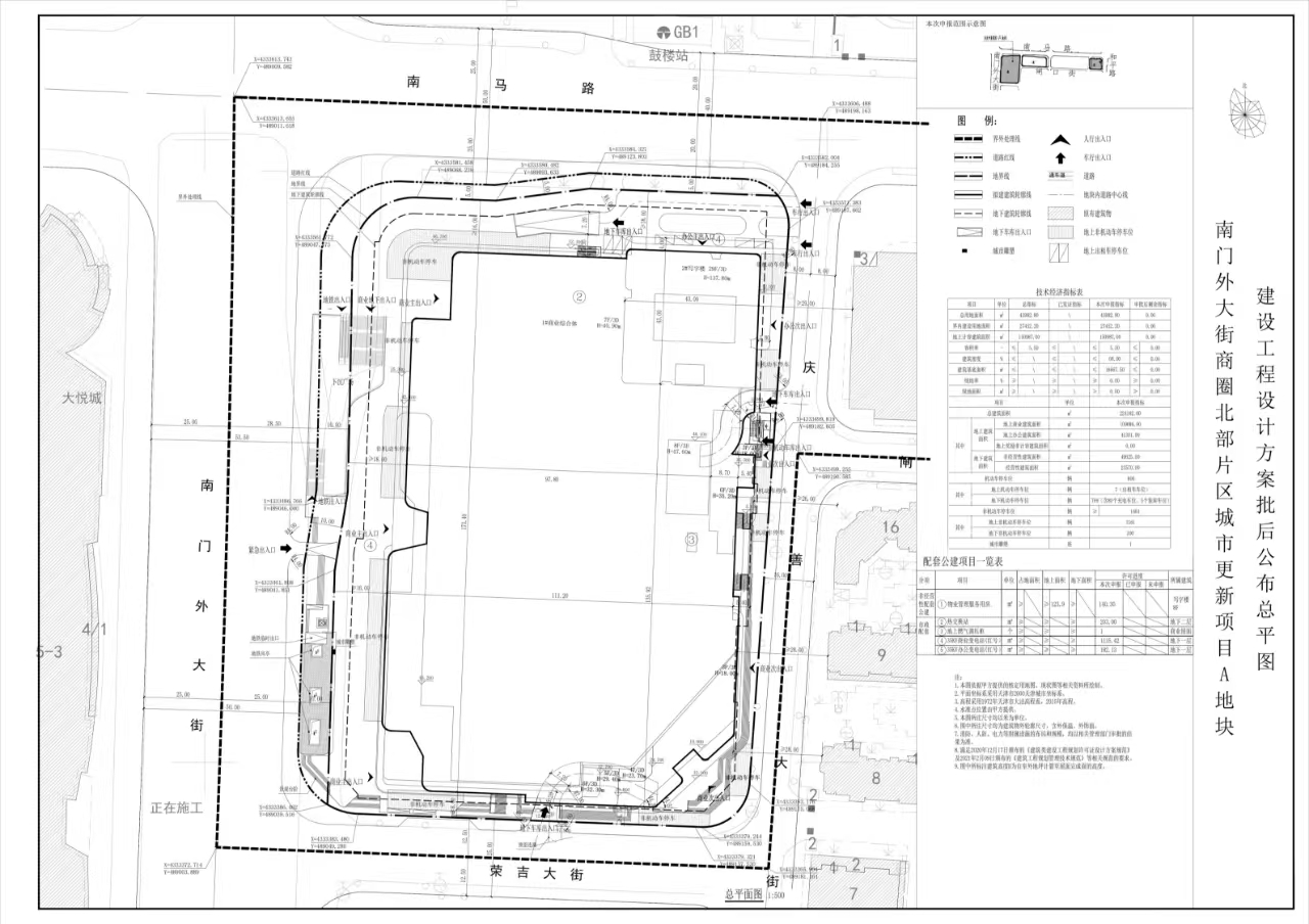
按照《中华人民共和国城乡规划法》要求,现将和平区南门外大街商圈北部片区城市更新项目A地块建设工程设计方案总平面图予以公布。公布期限为信息发布之日起至建设项目规划验收合格为止。
联系电话:022-23308213
联系地址:和平区岳阳道88号欧美色情 和平分局

附件下载:
按照《中华人民共和国城乡规划法》要求,现将和平区南门外大街商圈北部片区城市更新项目A地块建设工程设计方案总平面图予以公布。公布期限为信息发布之日起至建设项目规划验收合格为止。
联系电话:022-23308213
联系地址:和平区岳阳道88号欧美色情 和平分局

国务院相关部委
政府机关
局属单位网站
主办单位:欧美色情-高清欧美色情大片在线点播网 地址:天津市和平区曲阜道84号 邮编:300042
网站标识码:1200000077 备案编号:津ICP备19001981号
津公网安备12010102000518号
版权所有:欧美色情